mfa
2107-maison-tou-agence-mfa-architecte-nantes-f.dantart-non-libre-de-droits-interieurs-17.jpg

Nantes | 44

Habiter

Tou
2016

Maison individuelle

 Infos

Statut

Livré

Moa

Privée

Moe

mfa

Programme

Transformation d'un atelier en maison individuelle
1er prix A Vivre Rénovation 2021

Coût

NC

Surface

160 m²

Enjeux

Crédit

Photo : F. Dantart


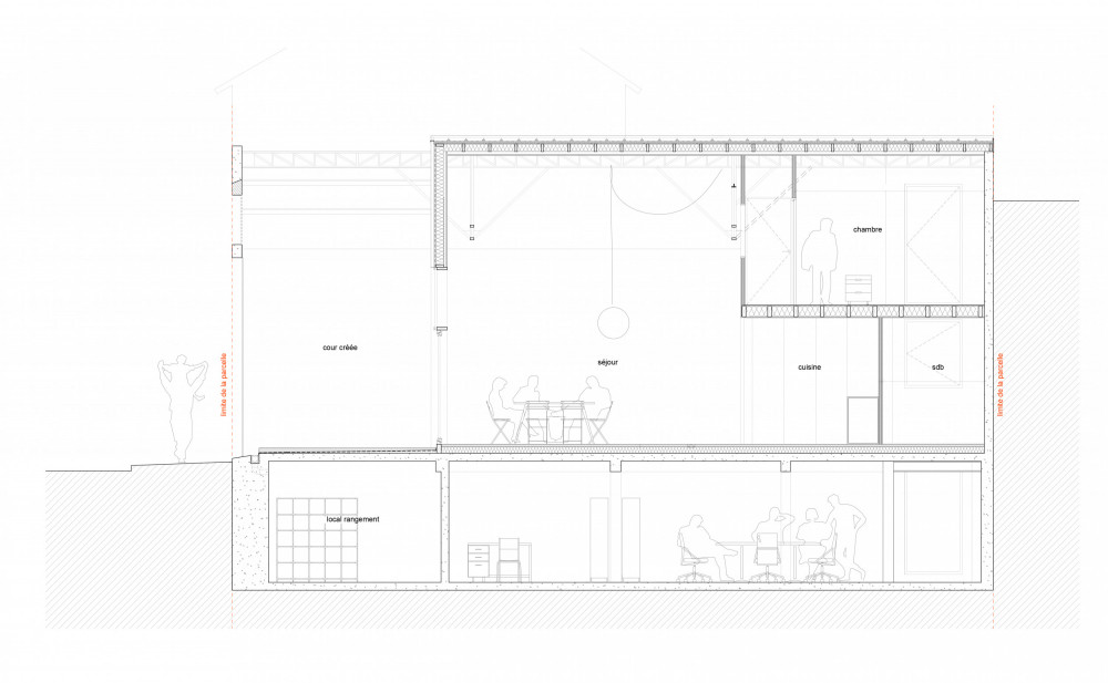
Le bâtiment initial, un atelier de sculpteur, se situe dans un quartier résidentiel de Nantes, sa superficie est de 116 m2. Tout le projet est de créer une maison dans ce hangar tout en gardant son esprit d’atelier.

La transformation prévoit la dépose d’une partie de la toiture pour créer : une cour côté rue bien orientée et d’un patio côté cœur d’îlot. La nouvelle charpente en bois prend appui sur les fermettes industrielles en acier, et les façades intérieures sont composés de murs ossature bois. Un grand mur-rideau en bois assure la continuité visuelle de la cour et du séjour en double hauteur. Une mezzanine surplombe le séjour avec une terrasse en continuité, offrant malgré la surface réduite des espaces extérieurs, une variété d’ambiances : cour atelier minéral, terrasse comme suspendue, ou patio intimiste végétalisé.