mfa
2107-maison-tou-agence-mfa-architecte-nantes-f.dantart-non-libre-de-droits-interieurs-17.jpg

Nantes

Inhabit, Work

Tou
2016

Maison individuelle

 Infos

Status

Livré

MO

Privée

MOE

mfa

Programm

Studio renovation

Cost

NC

Surface

160 m²

Moe

mfa

Equipe

nc

Mo

Privée

Surface

85 (+75) m² SHAB

Budget

nc

Site

Nantes | 44

Prog.

Maison avec mezzanine

Statut

2017 - livré

Distinction

1er prix A Vivre Rénovation 2021


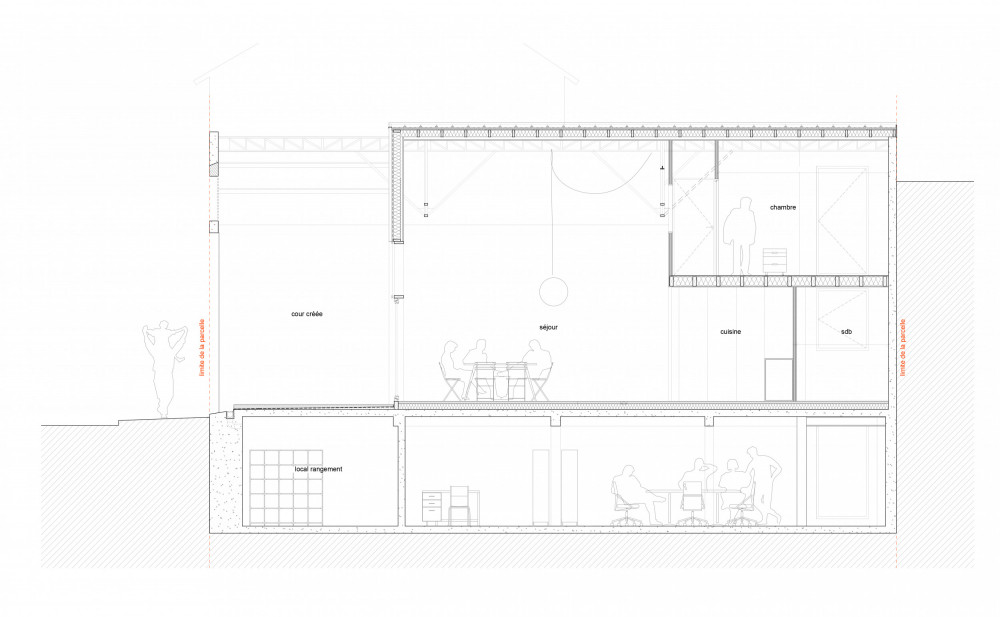
The original building, a sculptor’s workshop, is located in a residential area of ​​Nantes, with a surface area of ​​116 m2. The entire project aims to create a house within this workshop while preserving its workshop spirit.

The transformation involves removing part of the roof to create: a courtyard facing the street, well-oriented, and a patio facing the heart of the block. The new wooden frame is supported by industrial steel trusses, and the interior walls are composed of timber frame walls. A large wooden curtain wall ensures visual continuity between the courtyard and the double-height living room. A mezzanine overlooks the living room with a terrace in continuation, offering, despite the reduced surface area, a variety of outdoor spaces and atmospheres: a mineral workshop courtyard, a suspended terrace, or an intimate vegetated patio.