mfa
mfa_mon_photo-06.jpg

Monnières | 44

Apprendre

Mon
2019

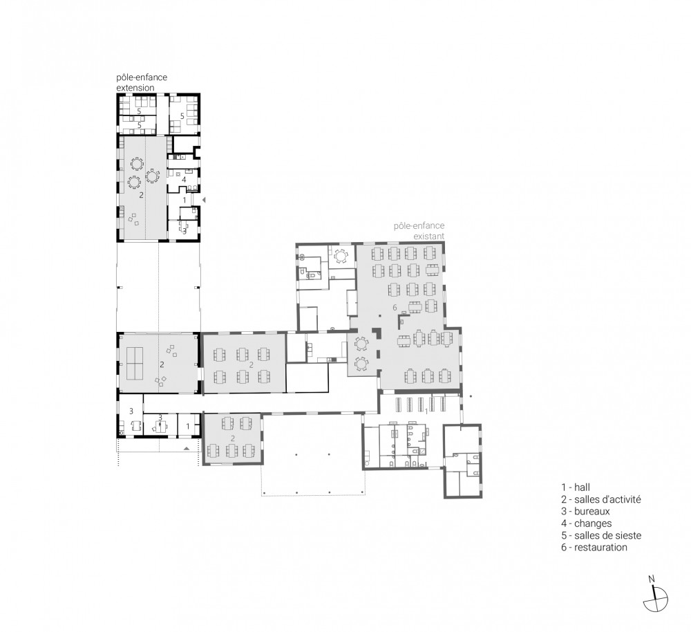
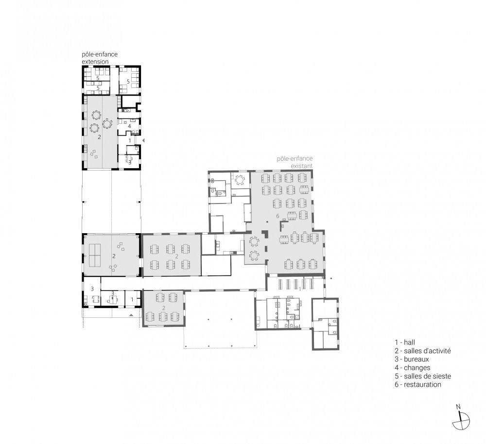
Pôle enfance

 Infos

Moa

Commune de Monnières

Moe

mfa + Naonec +ALS + wigwam + LOG + Gotec

Programme

neuf : salles d'activité + salles de sieste + bureaux + espace extérieur | réhab. : restauration + hall

Coût

0.8 M€ HT

Surface

1 262 m² SP (330 m² neuf + 932 m² réhab.) - 1 174 m² SU

Enjeux

Flexibilité d’implantation de l'équipement I Organisation intérieure évolutive

Crédit

Photo : F Dantart


Une flexibilité à plusieurs échelles. Tout d’abord, à l’échelle des ambitions de Monnières où le projet s’implante. Une commune qui a pour objectif de créer un pôle enfance, regroupant école, halte garderie et périscolaire à proximité.
Ainsi, le projet vient s’implanter en s’accrochant au centre de loisirs, lui déjà existant. Un nouveau bâtiment rectiligne qui apporte une nouvelle façade, et une nouvelle organisation, amorçant la transformation du nouveau quartier.

L’implantation prend le contre-pied de la demande initiale de conserver une emprise disponible au nord (un terrain de jeux y est prévu pour le moment).
Ensuite une flexibilité à l’échelle du bâtiment. Une enveloppe unie s’incrit dans les teintes ocres existantes, tout en dénotant par une couverture qui se retourne sur les murs. La structure en portiques permet de conserver le volume libre et généreux. Un jardin d’hiver qui sert de transition entre les deux programmes, un espace tampon partagé entre les différents enfants du pôle.
Une circulation centrale est créée afin de redonner une lisibilité et une distribution linéaire au centre périscolaire. Cette circulation est-ouest (le long du préau) connecte l’extension avec l’existant et pourra se poursuivre à l’ouest dans le futur.