mfa
cer_221018_photo-1.jpg

Paris | 75

Echanger

Cer
2019

Centre culturel

 Infos

Statut

APS

Moa

Privée

Moe

mfa + Eurogip (M)

Programme

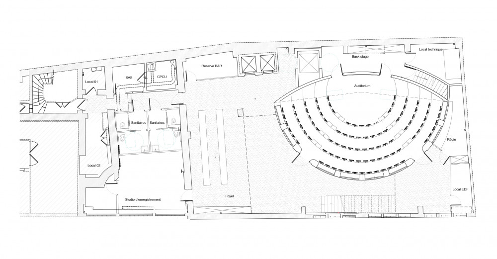
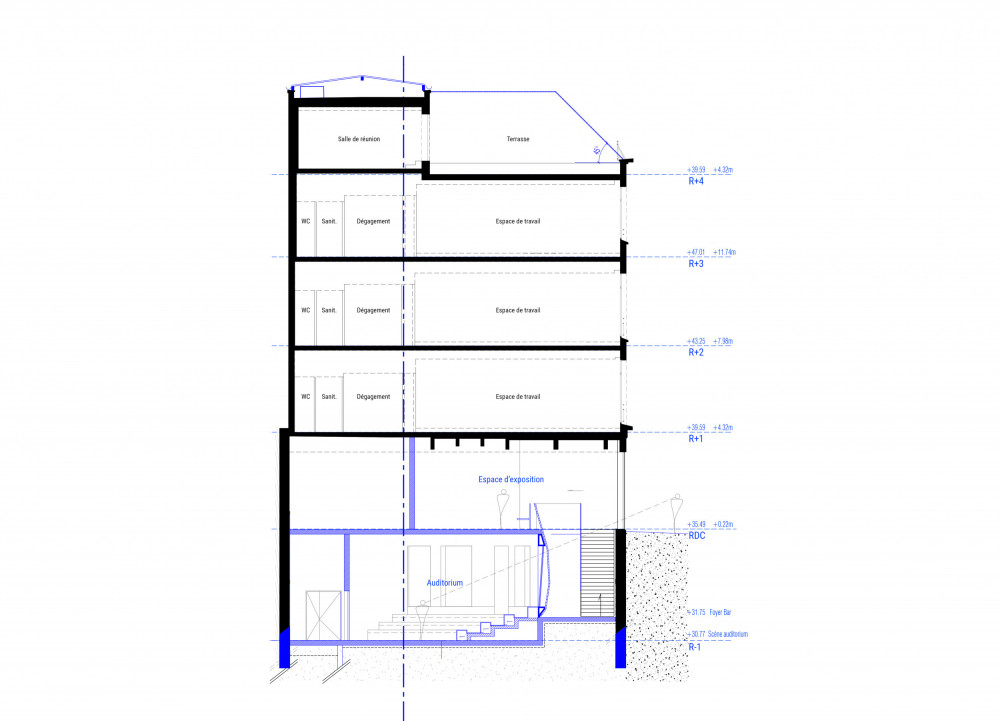
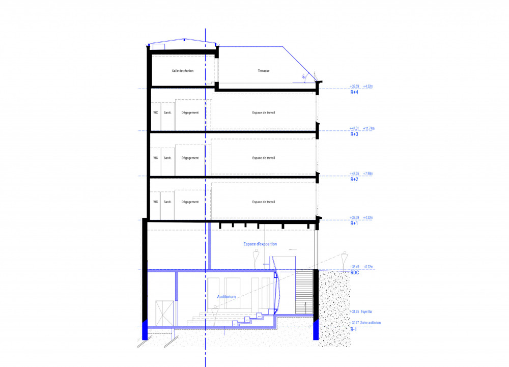
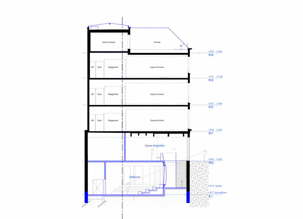
Galerie d'exposition, salle de réunion, salle d'enregistrement, foyer, auditorium

Coût

1,7 M€

Surface

570 m²

Enjeux

Valoriser un volume existant de parking au cœur de Paris I Donner une identité forte à une nouvelle galerie littéraire


La création d’un centre culturel en lien avec les éditeurs est l’occasion d’exploiter l’ancien volume de parkings sous les bureaux de l’association. Le projet comprend une galerie d’exposition en accès direct depuis la rue, une salle de réunion, une salle d’enregistrement, un foyer et un auditorium de 100 places.

Cet auditorium est conçu comme un oeuf (coque en bois) qui émerge du sous-sol, et dont les fonctions tierces éclosent autour : exposition sur le haut, bar/foyer adjacent. Comme un événement perceptible depuis la rue, l’oeuf intrigue et crée un appel depuis la rue.