mfa
mfa_trin_pers-01.jpg

Clisson | 44

Echanger

Trin
2021

Maison paroissiale

 Infos

Moa

Paroisse de Clisson

Moe

mfa + Kypseli + ALS + Naonec

Programme

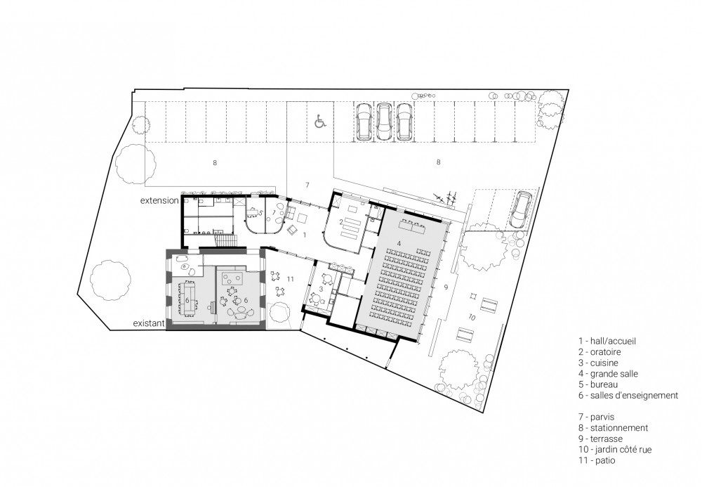
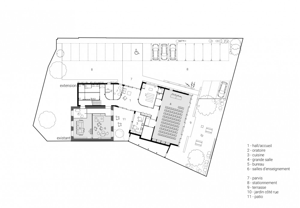
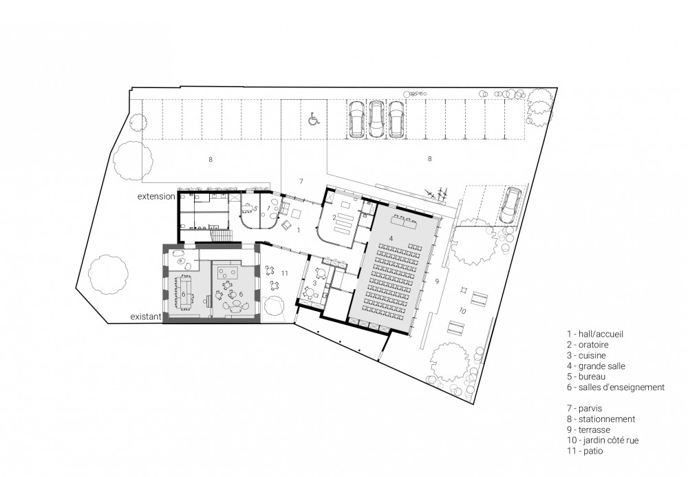
Salle polyvalente avec espace extérieur, cuisine, rangements, salles de cours, et bureaux

Coût

0,80 M€ HT

Surface

508 m² SU / Neuf : 309 m² - Rénovation :181 m²

Enjeux

bâtiment « low-tech » : ventilation naturelle et apports thermiques passifs - structure bois poteau/poutre - matériaux biosourcés et réemploi


L’objectif de ce projet est d’orienter la grande salle de la maison paroissiale vers la rue St-Nicolas, tout en créant une cour, en creux. Ainsi mise à distance, une continuité d’usage s’installe, entre la vie du quartier de la Trinité et les cours intérieures méridionales, espaces extérieurs minéraux donnant sur la rue. Les activités de la paroisse sont ainsi visibles tout en ne s’imposant pas.
De plus, le hall d’entrée se trouve au niveau de la partie intermédiaire du stationnement, facilitant l’accès aux salles plain-pied pour l’ERP. Le hall dessert également le RdC existant, l’ouvrant vers un futur passage au nord.

Le parti-pris du projet est donc de venir s’implanter autour du bâtiment existant, de manière humble, respectant ainsi de l’histoire de la paroisse. Nous faisons ici un choix essentiel, afin de proposer un projet sobre.
Les déplacements dans la maison paroissiale sont fluides, mettant en relation l’ensemble des fonctions « essentielles » : ressourcement (prière), rencontre (fraternité et service) et formation. Ce tout porteur d’une bonne nouvelle.