mfa
mfa-sav-vue.jpg

Savenay | 44

Habiter

Sav
2025

40 logements collectifs I Bois des Amourettes

 Infos

Statut

PC accordé I Concours lauréat

Moa

Presqu’île investissement

Moe

mfa + Bap + Solab + Betap + Exe + Sculo

Programme

30 logements intermédiaires libres + 10 logements intermédiaires sociaux

Coût

4 M€

Surface

2 028 m²

Enjeux

Respect du site, de la topographie et des espaces arborés existants
"low tech" : lumière et ventilation naturelle
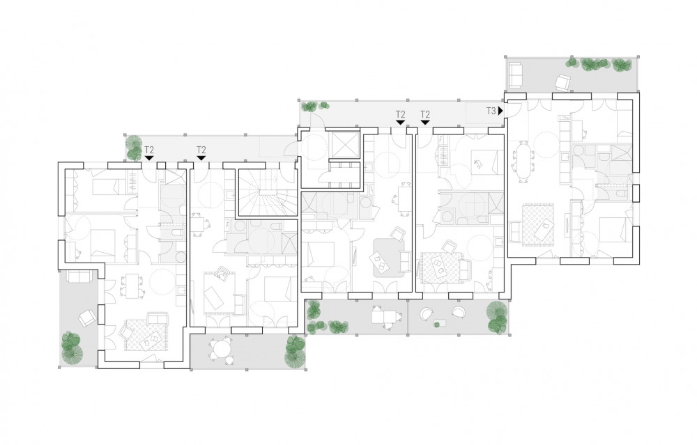
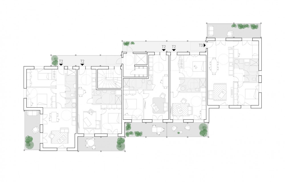
logements traversants

Crédit

Perspectives - BVLP


Le projet propose un équilibre harmonieux entre les constructions et la nature. Il s’organise en 3 volumes disposés en arc de cercle, offrant une vue sur les conifères au nord et les buttes végétalisées au sud et à l’est. La volumétrie fragmentée des bâtiments s’harmonise avec le quartier environnant. La faible épaisseur des constructions et la circulation via des coursives permettent à tous les logements d’être traversants et de bénéficier chacun d’un balcon ou d’un jardin privatif. Les coursives partagées par deux à trois logements créent des espaces appropriables par les habitants.


La circulation est pensée pour limiter l’emprise des voitures ; celles-ci sont cantonnées à l’entrée du site, le reste de la parcelle étant dédié aux piétons et aux cycles. Le parking paysager et les jardins privatifs proposent une végétation indigène et mellifère ne nécessitant que peu d’entretien.


La structure combine brique isolante et ossature bois avec des isolants biosourcés et une vêture en bois afin de réduire l’impact environnemental. Le projet repose sur des solutions « low tech » : il privilégie la lumière naturelle, assure une ventilation naturelle par des logements traversants et utilise des balcons comme dispositifs de protection solaire.