mfa
mfa_roi_photo-02.jpg

Nantes | 44

Habiter

Roi
2019

10 logements sociaux - Restructuration

 Infos

Statut

Livré

Moa

Habitat 44

Moe

mfa + Alr (M) + Ecms + Gefi + ACS Chantal

Programme

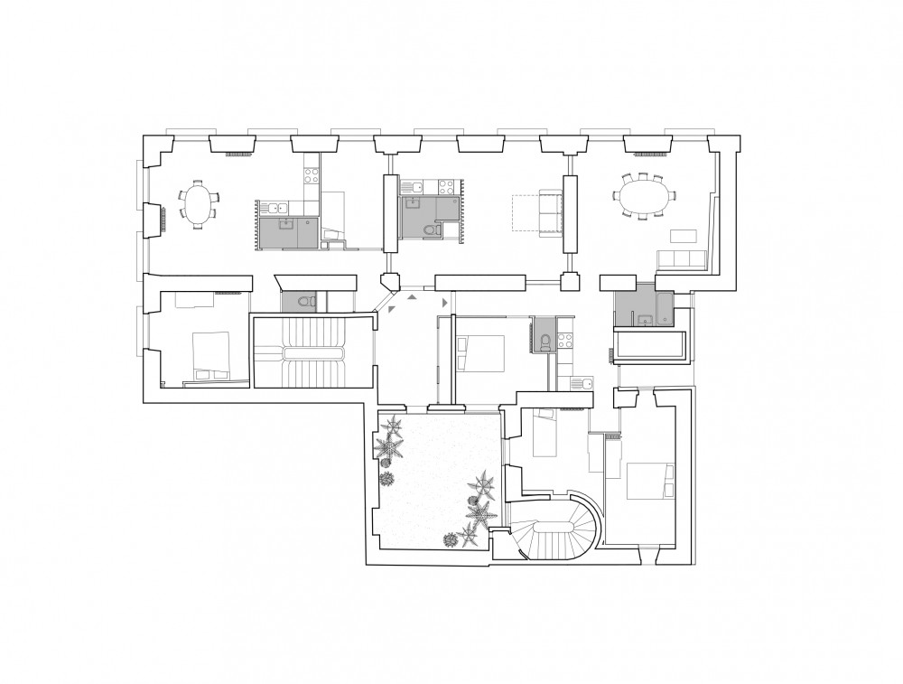
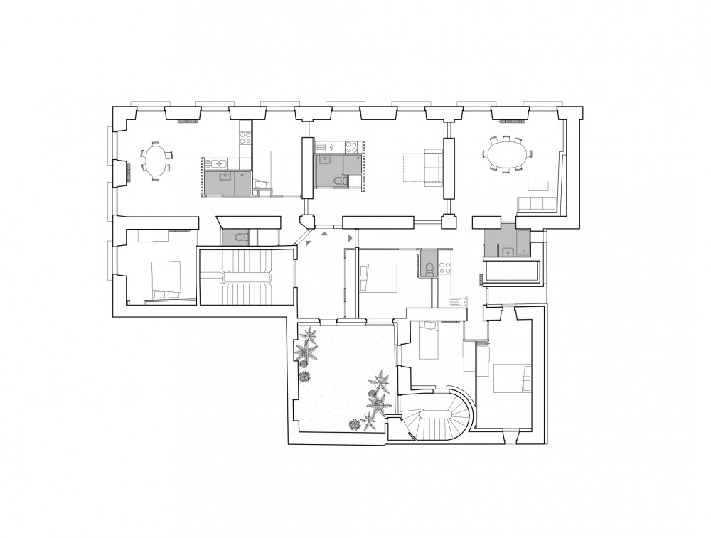
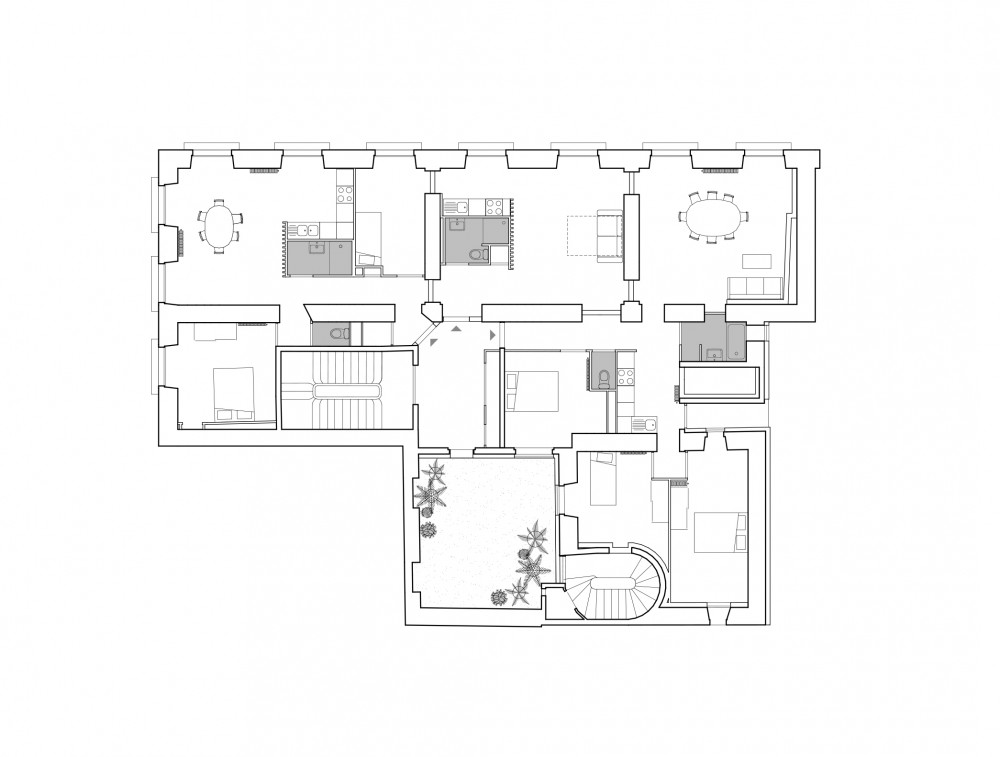
Transformation d'un immeuble patrimonial en 10 logements collectifs sociaux

Coût

1 M€

Surface

682m²

Enjeux

Valorisation de l'existant
Intervention réversible - salle d'eau structure bois
Menuiseries extérieures bois rénovées
ITE zinc sur cour avec gestion acoustique
Dalle chaux perspirante en RDC


Afin de conserver les qualités du bâtiment existant, les travaux sont limités au strict minimum et menés dans un souci de valorisation et de préservation de l’existant. Les transformations et adaptations nécessaires, seront, dans la mesure du possible, réversibles. Le projet d’aménagement cherche à proposer le meilleur compromis usage/espace en valorisant les dispositions atypiques d’origine.

Les logements possèdent tout un séjour sur la façade « noble » avec vue directe sur la place Roger Salengro et la Préfecture. Les interventions nouvelles sont résolument contemporaines afin de ne pas faire un pastiche du passé et de révéler l’existant. Afin de conserver les volumes d’origine, tout en permettant la création de nouvelles typologies de logements avec les espaces de salle d’eau et de cuisine « moderne », le projet comporte des sous-volumes : « boîtes de bois ». Celles-ci sont différenciées par des cloisons et doublages existants, avec une hauteur sous plafond laissant apparentes les moulures, posées sur une structure indépendante des parquets.

La réversibilité de cet ouvrage envisage déjà l’adaptabilité future de l’immeuble. Les fenêtres constituent un véritable enjeu. Au regard de leur nombre et leur qualité, une stratégie au cas par cas est adoptée. Celles qui sont inopérantes ou défectueuses sont remplacées par des fenêtres bois en double vitrage respectant le dessin initial. Les autres sont réparées, remises en jeu et repeintes.