mfa
bot-ext-hd02.jpg

Ayent | Suisse

Apprendre

Bot
2023

Groupe scolaire

 Infos

Statut

Concours non retenu

Moa

Commune d’Ayent

Moe

mfa + Bap + Pini Groupe

Programme

7 salles de classes, salle multisport avec vestiaire, périscolaire, cantine scolaire

Coût

13 M€

Surface

4 399 m²

Enjeux

Minergie P et Minergie ECO I Plancher mixte CLT/béton et portiques bois I Ventilation naturelle I Murs-rideaux vitrés avec casquette I Stores toiles I Géothermie

Crédit

Pesrspectives - BVLP


À flanc de coteau, Botyre est un des villages en terrasse d’Ayent qui donne à contempler de nombreuses vues sur les Alpes ; le groupe scolaire dispose ainsi d’une situation privilégiée.
Un rapport particulier au paysage s’instaure pour les enfants, une ouverture sur le monde.
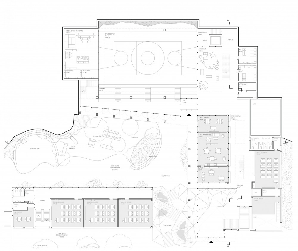
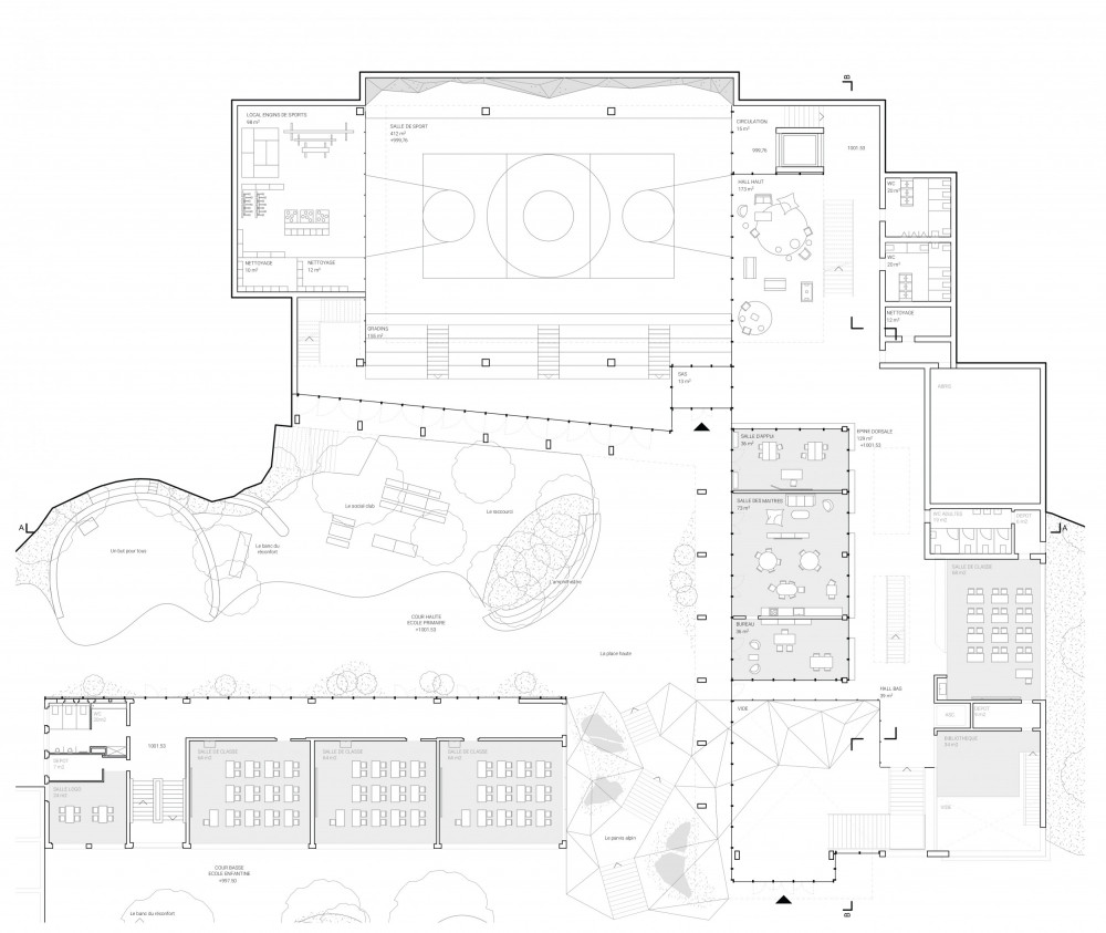
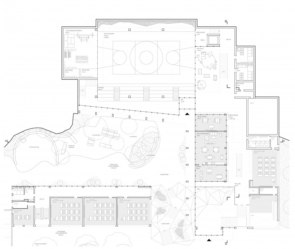
Le futur bâtiment, s’adosse à un l’existant. L’organisation de la salle de gymnastique et l’école d’origine sont ainsi maintenues, seules certaines façades seront modifiées ou mises aux normes.
Le dispositif en « strates » et en gradins, superposant les infrastructures scolaires, l’UAPE, la cantine scolaire et les nouveaux équipements sportifs, répond à la fois aux problématiques de flux avec des accès piétons différenciés et propose des espaces extérieurs en continuité de ceux intérieurs.

À flanc de coteau, Botyre est un des villages en terrasse d’Ayent qui donne à contempler de nombreuses vues sur les Alpes ; le groupe scolaire dispose ainsi d’une situation privilégiée.
L’aménagement paysager ludique et sensible, jouant avec la topographie du site et le revégétalisant, assure aussi une continuité entre la cours haute et basse pour fluidifier les liens entre les différents espaces.
Les enjeux de sobriété environnementale et de parasismique sont aussi pleinement considérés pour proposer un projet durable. De plus, les matériaux locaux recyclés et à faible empreinte carbone sont ici privilégiés.