mfa
2404-bloom-16lgts-mfa-architecte-ideal-promotion-le-rheu-f-dantart-non-libre-de-droits-exterieurs-2m-2.jpg

Le Rheu | 35

Inhabit

Rhe
2024

16 logements Hors-site - Prix régional bois

 Infos

Status

Livré

MO

Idéal groupe

MOE

mfa + Vestack + Solab + Als + Abeil + Origami

Programm

16 housing Offsite timber

Cost

1,7 M€

Surface

1 120 m²

Archi

mfa

Team

Vestack + Solab + ALS + Abeil + Origami

Client

Idéal Groupe

Size

1 120 sqm

Budget

1,6 M€ HT

Site

ZAC Trémelière, Lot E, Le Rheu (35)

Goal

Off-site 3D construction 100% wood
E2C2 - Level 3 bio-sourced
Earth Brick Walls
Triple glazing I Wood fiber
Pass-through apartments

Prog.

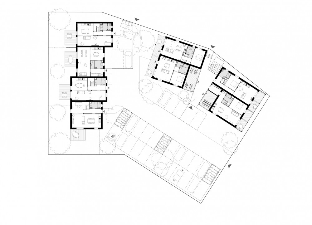
12 collective housing units and 4 affordable individual houses

Status

2024 - Completed


Entirely designed with prefabricated 3D timber modules assembled in a workshop, where finishes are also completed and equipment installed, the entire project is calibrated to road standards. The carbon expenditure of convoys is largely offset by the carbon footprint of the project: minimal earthworks, low wooden floors, and the entire wooden structure… reaching an E2C2 level. The Level 3 biosourced ambition also addresses the issue of limited resources.

In the northwest, a strip of 4 grouped individual houses R+1 and to the east, the collective housing in two plots with central distribution through a walkway: 16 housing units in R+2. The dual-oriented collective housing units feature large windows opening onto balconies in the northwest and southeast for all collective housing units. Windows with shutters are positioned to the south, enlivening the facade. The central walkway, the structures of the protruding balconies, and the roof cutouts provide depth and define the facades. Alternative treatment of cladding: gray and graphite.